
2月8日,经历12天争分夺秒的奋战,武汉雷神山医院也交付使用了,随着各种建造、设备技术的发展,雷神山的标准比小汤山高很多,医疗硬件更强,污水处理、空气净化等技术更加先进,也将医院对周边环境的影响降到了最低。今天说一说雷神山医院的机电工程中的一个重要元素“水”元素。? ??

1、 从logo解读风“水”
中国人建房都讲究风水,先解读从雷神山logo的设计解读一下风“水”, 雷神山logo三个元素:莲花,雷电,盾牌,再加一个“十”字医院标识。其中盾牌代表着保护、守护。雷电在中国传统文化中代表着驱邪,莲花在道教文化中有救世渡人之意。而雷在八卦中震,五行属木,所以采用绿色基调。

2、 关于“污水”的有效处理
雷神山医院的污水来源较复杂,要充分考虑到宿舍、病房、医用设备等排放,还有含有病毒的等,若考虑不周全,则会对周边的环境造成污染,因此需要能有效的处理才能排放或纳管。
同时,为了避免医院的雨水会渗透到地下,雷神山医院建设施工过程中,利用hdpe防渗膜,为雷神山医院12万平方米防渗膜全覆盖,为地下基础穿上“防护服”,不让一滴污水进入地下,雨水全收集全消毒,不会污染到周围周边湖泊和土壤。


3、 确保生活用水的安全、方便
雷神山医院是ncp(新冠病毒)集中的地方,安全的饮用水是至关重要的。为此,很多净水设备厂商为武汉雷神山医院捐赠了净水系统,主要用的是反渗透机型,反渗透膜又叫ro过滤膜,ro反渗透膜表面微孔的直径一般在0.5-10nm之间,是头发丝的一百万分之一(0.0001微米),肉眼无法看到,细菌、病毒是它的5000倍。对一价盐分氯化钠的截留率可以高达99.5%以上,利用反渗透ro膜技术,可以确保水中的细菌、病毒、杂质、重金属等均被去除,仅允许水分子透过ro膜,获得纯净水,确保雷神山的医患人员的饮水安全。
除了确保饮用水的安全外,寒冷的冬季热水的充足供应也是必不可少的。 医院病房区洗手间采用单元式电热水器供应热水,洗手龙头和淋浴都有热水。每个卫生间设置储热容积为100l的电热水器,电热水器水温稳定且温度可调节,确保舒适好用,采用水电分离技术,确保安全。

反渗透膜过滤示意图,图片来源:迪奥水处理

卫生间给水和热水,蓝色为热水管,绿色为给水管
4、 给水
雷神山医院给水三路环状供水。在短时间内武汉水务集团升级内部原有供水系统,水表扩容、增加转压设施、增设水质监测点,保障了医院安全优质用水的关键。

图片来源:长江日报
室外给水管道为生活和消防各自单独设管道系统,均由市政供水。为保证室内外给水和消防用水,当其中一条进水管发生故障时,其他进水管应仍能保证用水量。这个设计没有什么特殊的。
室内给水,为了满足本项目的生活用水水量和水压的要求,本项目未采用直接市政压力直接供水,而是采用一体化生活泵房变频供水。这个设计没有什么特殊的。
特殊的是:
第一,污染区和清洁区的给水管道分别设置,污染区的给水管道上设置倒流防止器,给水设置检修阀门,阀门设在清洁区内。
第二,给水预留消毒剂接口,设应急加氯设施确保水质安全,达到传染病应急医院的建造标准。
第三,消防用水、给排水管道不穿越无菌室,穿越时采取了防漏措施。
5、冷凝水
雷神山医院所有安装分体空调机的病房冷凝水都不得随意排放,空调冷凝水应集中收集,最后同污水、废水集中消毒处理后再排放。冷凝水一般水质比较干净,可以直排,考虑到ncp病毒气溶胶有可能附着在空调设备上,进入冷凝水,所以必须进行消毒才能排放。这一点不同于一般的民用建筑。
6、 地漏排水
雷神山医院准备间、污洗间、卫生间、浴室、空调机房设置地漏,但是护士室、治疗室、诊室、检验科、医生办公室等房间不设地漏。地漏采用带过滤网的无水封地漏加存水弯,存水弯的水封不小于50mm;可采用洗手盆的排水给地漏水封补水;用于手术室、急诊抢救室等房间的地漏采用可开启的密封地漏。
 7、节水 
医护人员用水点均采用非接触性或非手动开关,龙头采用感应水龙头和带脚踏冲洗阀的蹲式大便器。公共卫生间洗手盆也采用感应自动水龙头,小便斗配自动感应式冲洗阀。病房采用坐式大便器,采用二档低水箱坐式大便器。

雷神山医院污水处理设计
工程由中建三局一公司牵头实施,并负责医疗隔离区施工,中建三局基建投公司负责医护住宿区施工,中建三局绿投公司负责医疗污水处理设施安装等相关施工。
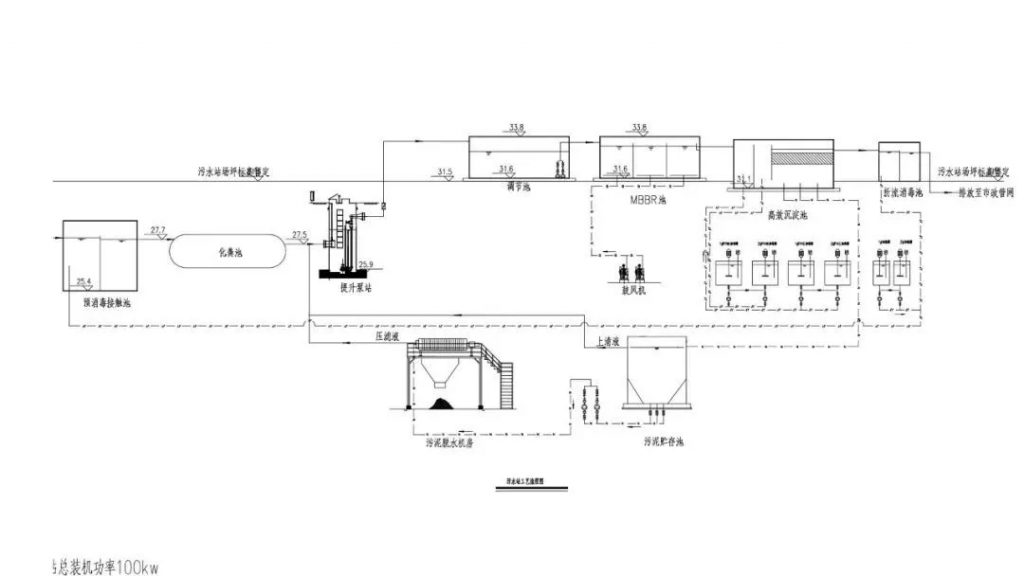
雷神山医院污水处理采用生化处理,如下图(点击图片查看大图),流程为:接触消毒-化粪池-调节池-mbbr池-高效沉淀池-消毒-排至市政污水管网!

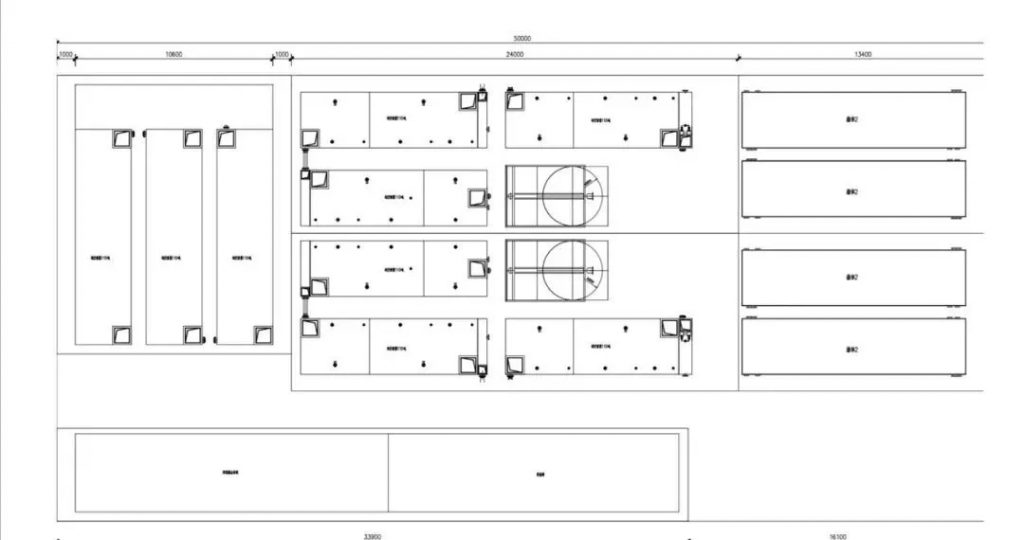
图1:雷神山污水处理平面图

图2:雷神山污水处理剖面图
附:《mbbr调试方案》
mbbr(载体流动床移动床生物膜反应器)原理是通过向反应器中投加一定数量的悬浮载体,提高反应器中的生物量及生物种类,从而提高反应器的处理效率。由于填料密度接近于水,所以在曝气的时候,与水呈完全混合状态,另外,每个载体内外均具有不同的生物种类,内部生长一些厌氧菌或兼氧菌,微生物生长的环境为气、液、固三相。载体在水中的碰撞和剪切作用,使空气气泡更加细小,增加了氧气的利用率外部为好养菌,这样每个载体都为一个微型反应器,使硝化反应和反硝化反应同时存在,从而提高了处理效果。
1.设备调试
开启水处理设施、管道中所有阀门和闸阀,启动进水泵送水,根据各构筑物进水情况,沿工艺流程适时启动其他设备。在此过程中应做好以下几方面工作:
1.检查进线总电流是否符合要求,变配电设备工作是否正常,各种设备工作情况是否正常以及能否满足设计要求,仪器仪表工作是否正常,自控系统能否满足设计要求。
2.用容积法校核进、出水流量计计量是否准确,校核在线监测仪,检测进、出水水质,流速,测量并记录设备的电压、电流、功率和转速。
3.及时解决试车过程中发现的问题。
4.编制设备操作规程。
2.mbbr生物膜的培养
生物膜的培养实质就是在一段时间内,通过一定的手段,使处理系统中产生并积累一定量的微生物、使生物膜达到一定厚度,其培养方式主要有静态培养和动态培养。
◆ 静态培养
所谓的静态培养是:为了防止新生微生物随水流走,尽可能的提供微生物与填料层的接触时间,为加快生物膜的形成,开始阶段为了避免由于废水营养单一,故每天一次以bod5;n:p=100:5:1比例投加尿素、二胺、白糖等营养底物。首先将接种污泥(10%生化有效体积)和废水泵打入生化池内,然后开始曝气培养。生化池内填料的堆放体积按反应池有效容积35%~40%。静置4-5h不曝气,使固着态微生物接种到填料上,然后曝气1h,再静置2h,曝气1h,重复操作,4-5天后,填料表面已全部挂上生物膜,第6天开始连续小水量进水。
◆ 动态培养
经过6天的闷曝培养,填料表面已经生长了薄薄一层黄褐色生物膜,故改为连续进水,进行动态培养,调整进水量,控制溶解氧在2~4mg/l之间(用溶氧仪测定溶解氧)。约15天之后,填料上有一些变形虫、漫游虫(用生物显微镜观察),手摸填料有粘性、滑腻感,在20天以后出现鞭毛虫、钟虫、草履虫游离菌等原生动物。在经过20天的培养出现轮虫、线虫等后生动物,标志生物膜已经长成。可以开始连续工业运行。
3.生物膜的驯化
驯化的目的是选择适应实际水质情况的微生物,淘汰无用的微生物,对于有脱氮除磷功能的处理工艺,通过驯化使硝化菌、反硝化菌、聚磷菌成为优势菌群。具体做法是首先保持工艺的正常运转,然后,严格控制工艺控制参数,do平均应控制在2~3mg/l之间,好氧池曝气时间不小于5小时,在此过程中,每天做好各项水质指标和控制参数的测定,当生物膜的平均厚度在0.2-0.5mm左右生物膜培养即告成功,直到出水bod5、ss、codcr等各项指标达到设计要求。
|免责声明:本文系网络转载。如涉及版权,请联系删除。
为配合打赢疫情防控阻击战,避免人员聚集引发交叉感染,保障所有展商、观众及参会人员的安全和健康,主办方决定,将原定于2020年6月3-5日在上海国家会展中心(虹桥)举办的第九届上海国际泵管阀展览会将延期至2020年8月25-27日举办。
附件:


 
			 
			
 
			 
			
 
	









